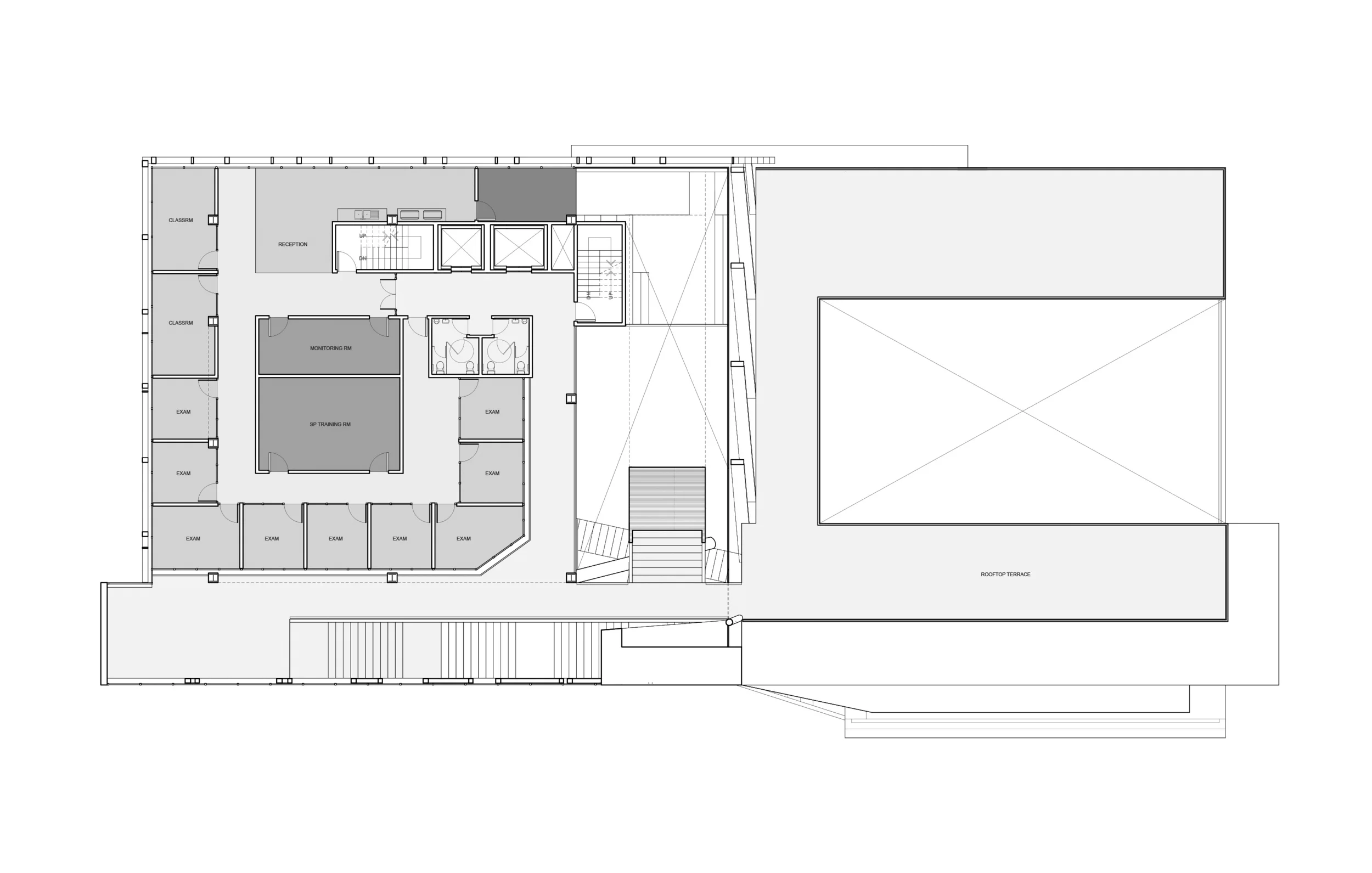
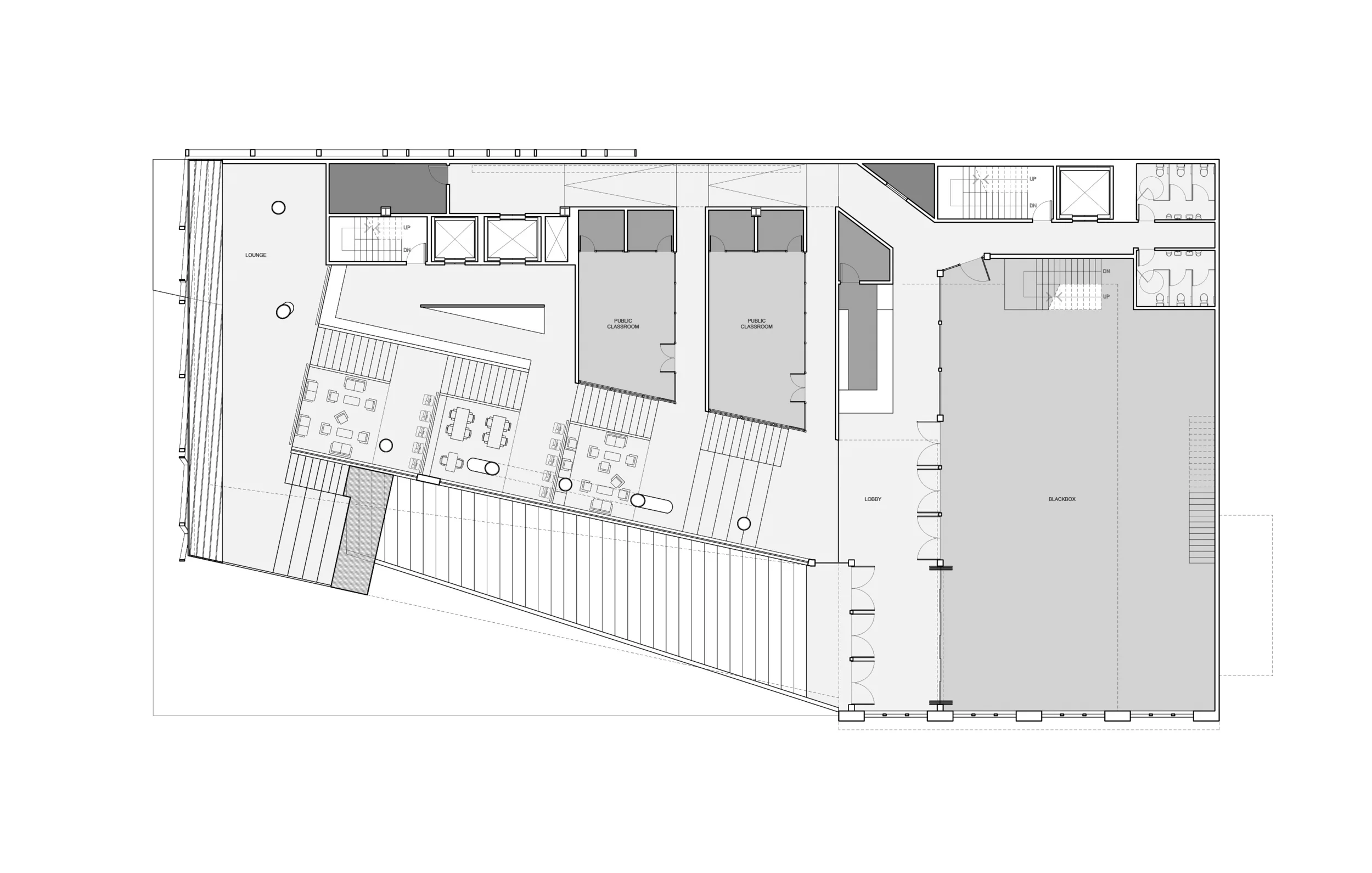
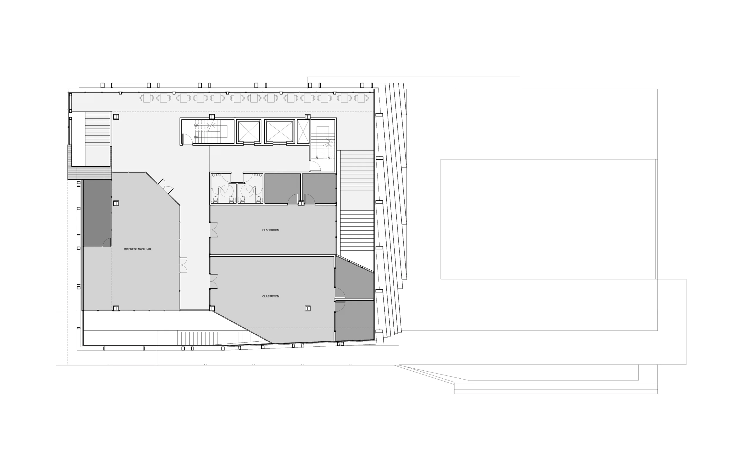
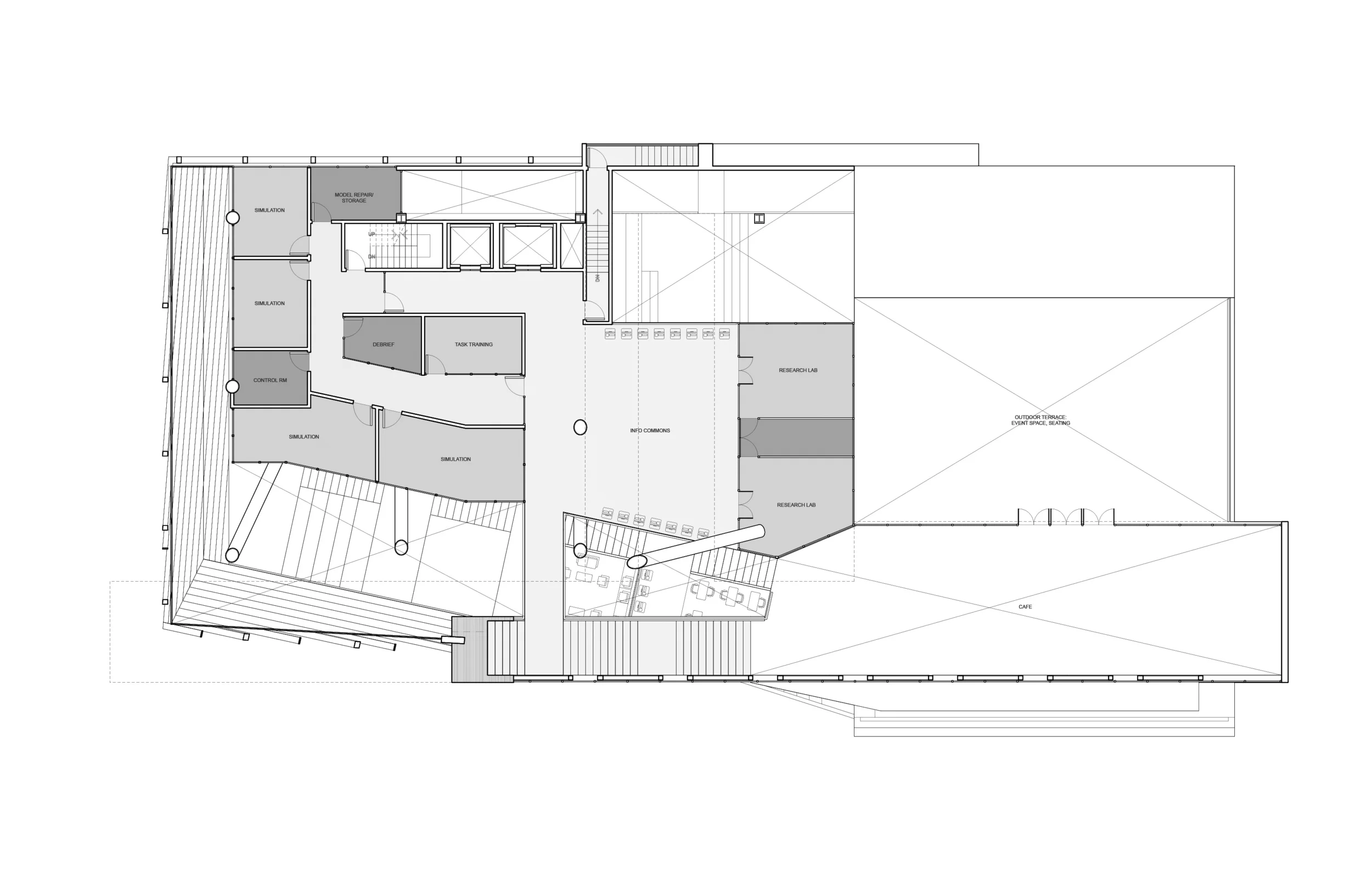
MECH - Medical School and Technology Incubator | redefines the parameters of vertical buildings and its relationship to programmatic functions. Located in the SOMA district of San Francisco, this project seeks to create multiple "grounds" of interaction, forming a continuous network of public forum spaces that intertwines education and innovation. Circulation then becomes a place of gathering, rather than a place of passing. Adjacent to each circulation strand, programs such as simulations, exam rooms, and research labs become transparently displayed to users and the public. 

Fall 2015 | Comprehensive Studio // Advisor: Mario Cipresso

Kenny Chao - RENDER_AERIAL 2.jpg
Kenny Chao - Zoomed In Section